安科瑞電力監控系統和五防系統在錫林郭勒項目的應用
摘要:隨著電力、計算機、信息和網絡等技術的不斷發展,推動了電力監控的快速發展,人們對電力系統運行的安全性以及穩定性的要求越來越高。本文針對錫林郭勒供配電系統特點及供配電系統高可靠性的要求,提出了保護類、監測類和防誤閉鎖產品解決方案。本文介紹的AM5SE系列微機保護裝置,可以針對錫林郭勒配電工程中不同保護對象提供對應的保護功能,并且通過電力監控系統采集相關遙測、遙信和SOE等數據完成監視、控制和預警,配合五防系統,大大提高了變電站運行的可靠性、安全性、提高供電質量。實現變電站供配電系統的整體監測與管理。
關鍵詞:微機保護;防誤閉鎖;電力監控系統;微機五防系統;時鐘同步;UPS
1概述
中國移動通信集團內蒙古有限公司錫林郭勒分公司位于內蒙古自治區錫林郭勒盟錫林浩特市巴辦達布希勒特社區。從事移動通信、IP電話和因特網等網絡設計、投資和建設;移動通信、IP電話和因特網設施的安裝、工程施工和維修;經營與移動通信、IP電話和因特網業務相關的系統集成、漫游結算清算、技術開發、技術服務、設備銷售,以及其他電信及信息服務。
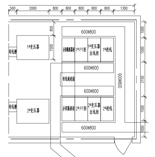
本工程為中國移動通信集團內蒙古有限公司錫林郭勒分公司10kV供配電工程項目,10kV系統為單母線分段接線形式,兩進線,母聯開關之間設置電氣連鎖,電纜下進線上出線,變壓器采用真空式斷路器,采用戶內金屬鎧裝移開式高壓開關柜,主變進線柜、分段柜、出線柜斷路器額定電流選用1250A,額定開斷電流選用25kA。10kV電壓互感器選用戶內環氧樹脂澆注式,全封閉、全工況電壓互感器。變電所平面布局圖如下:
2項目需求
根據用戶配電系統管理需求,需要對10kV進線、變壓器出線、交直流系統等進行全方面監控與保護,及時發現故障,保證配電系統可靠運行。
結合用戶實際生產工藝要求,為實現本項目10kV配電室的監控與管理,針對不同保護對象配置微機保護裝置:10kV進線柜配置線路保護裝置AM5SE-F;10kV變壓器出線柜配置AM5SE-T變壓器保護裝置;10kV分段柜配置AM5SE-B備自投保護裝置;10kV母線設備柜配置AM5SE-UB PT并列及監測裝置。
在電氣監控室配置一套電力監控系統和一套五防系統,通過通信管理機及網絡交換機實時采集微機保護裝置、電力儀表等二次設備數據,實現整個廠區供配電系統的電力監控與自動化管理。在電氣監控室配置一套電源系統,為整個變電站的斷路器、二次設備及監控主機等重要設備運行提供穩定可靠的電源。并配置時鐘同步裝置,放置在電氣監控室通訊屏,時鐘源支持GPS和北斗。監控系統、通訊管理機和微機保護裝置均從該裝置獲得授時(對時)信號,保證I/O數據采集單元的時間同步達到1ms精度要求。具體需求如下
(1)10kV配電室監控
1)10kV進線保護:
10kV進線柜各配置一臺線路保護AM5SE-F,當回路故障時,用于跳開本柜斷路器,切斷故障。
2)10kV變壓器柜保護:
10kV變壓器柜共配置2臺變壓器保護裝置AM5SE-T,當回路故障時,用于跳開本柜斷路器,切斷故障。
3)10kV母聯保護
母聯柜配置一臺備自投保護裝置AM5SE-B,用于實現兩進線和母聯之間的自動投切(進線備自投/母聯備自投/聯切備自投/自適應備自投),同時實現母聯保護功能。
4)10kV PT監測
PT柜配置一臺PT并列及監測裝置AM5SE-UB,實現兩臺PT柜間的切換以及監測,當回路電壓出現異常時,及時發出告警信號。
(2)微機五防閉鎖方案
針對10kV開關柜,每臺斷路器配置五防電氣鎖1把,每個手車(包含斷路器手車、PT手車、隔離手車)配置手車閉鎖套件1套,按手車數量的2倍配置柜內閉鎖套件,每個接地刀與隔離刀配置接地刀閉鎖套件1套,配置接地頭(按柜子數量的一半配置)。五防解鎖鑰匙4把、充電器2個、電腦鑰匙2把、微機五防軟件一套。
(3)時鐘同步
配置時鐘同步裝置一臺,放置在電氣監控室通訊屏,時鐘源支持GPS和北斗。監控系統、通訊管理機和微機保護裝置均從該裝置獲得授時(對時)信號,保證I/O數據采集單元的時間同步達到1ms精度要求。當時鐘失去同步時,自動告警并記錄事件,當時鐘失去電源時,自動生成告警信號。監控系統設備采用NTP對時方式,微機保護裝置對時接口采用IRIG-B對時方式。
(4)公共測控屏
配置公共測控屏一面,放置AM5SE-K公共測控裝置4臺。其中一臺AM5SE-K采集10kV I段母線側站用變電壓、10kV I段母線開口三角電壓和10kV 1#進線電流;另一臺AM5SE-K采集10kV II段母線側站用變電壓、10kVII段母線開口三角電壓和10kV 2#進線電流;還有2臺AM5SE-K分別采集站內各微機保護裝置異常信號和通信設備異常信號。
(5)電源
本項目針對10kV開關室和10kV開關室內監控設備的提供電源,具體配置方案如下:
直流蓄電池屏為100Ah后備電源,內含12V×18只蓄電池組1組;
直流充電屏內含3+1組10A模塊,直流接地監測儀(具備64路直流監測接口),斬波降壓裝置,硅鏈降壓裝置30A,雙路交流進線自動切換裝置;
直流饋電屏支持36路直流饋線,3kVA逆變電源,8路饋線;
站用電源屏配置進線開關2只,ATS切換模塊1個,進線電度表2只,24路饋線。
(6)后臺監控系統
在10kV開關室內配置通訊管理機1臺,實現10kV開關柜微機保護裝置的數據采集;在電氣監控室的通訊屏上配置通訊管理機1臺,實現10kV開關柜微機保護裝置、測控裝置、直流屏以及其它智能設備的數據采集。在電氣監控室配置監控系統和微機五防系統主機1臺、用于實現變電站的遙測、遙信、遙控、報警、報表、操作票、防誤操作等相關功能。監控系統按照單網組網方式,實現變電站內數據采集與實時監控。系統組網拓撲圖如下:
3 產品方案
本項目的微機保護裝置的產品上圖如下:
各型號主要實現的保護功能如下:
整個配電室所設微機保護型號與數量如下:
整個配電室所設防誤閉鎖裝置型號與數量如下:
4系統功能
(1)實時監測
Acrel-2000電力監控系統可以直觀顯示一次系統圖,并實時顯示10kV電壓等級各回路的遙測量、遙信量和報警信號等。遙測量包括電壓、電流、功率、功率、電能等電參量等;遙信量包括中壓開關柜內路斷路器、手車、隔離開關、負荷開關、地刀開關的分合狀態、斷路器彈簧儲能狀態及遠方就地控制狀態;報警信號包括微機保護裝置的告警信號、保護跳閘信號及裝置異常信號。
(2)電參量查詢
Acrel-2000電力監控系統在配電一次圖中,可以直接查看該回路詳細電參量,包括三相電流、三相電壓、有功功率、無功功率、功率因數、電能等。
(3)曲線查詢
Acrel-2000電力監控系統在曲線查詢界面,可以直接查看各電參量曲線,包括三相電流、三相電壓、有功功率、無功功率、功率因數、溫度等曲線。并統計該曲線查詢范圍內發生時間、平均值等。
(4)運行報表
Acrel-2000電力監控系統可以查詢各回路或設備指定時間的運行參數,報表中顯示電參量信息應包括:各相電流、三相電壓、總功率因數、總有功功率、總無功功率、正向有功電能、溫度值等。可以按照日、月、年的格式進行查詢、導出、打印。
(5)實時告警
Acrel-2000電力監控系統具有實時告警功能,系統能夠對配電回路斷路器、隔離開關、接地刀分、合動作等遙信變位,保護動作、事故跳閘等事件發出告警。
1.圖元告警
2.彈出事件報警窗口
3.實時語音功能,系統能夠對所有事件發出語音告警。
(6)歷史事件查詢
Acrel-2000電力監控系統能夠對遙信變位,保護動作、事故跳閘,以及電壓、電流、功率、功率因數越限等事件記錄進行存儲和管理,方便用戶對系統事件和進行歷史追溯、查詢統計、事故分析。可以按時間、類型和設備進行查詢和排序。
(7)電能統計報表
Acrel-2000電力監控系統具備定時抄表匯總統計功能,用戶可以自由查詢自系統正常運行以來任意時間段內各配電節點的用電情況,即該節點進線用電量與各分支回路消耗電量的統計分析報表。
(8)用戶權限管理
Acrel-2000電力監控系統為保障系統安全穩定運行,設置了用戶權限管理功能。通過用戶權限管理能夠防止未經授權的操作(如遙控的操作,數據庫修改等)。可以定義不同級別用戶的登錄名、密碼及操作權限,為系統運行、維護、管理提供可靠的安全保障。
(9)網絡拓撲圖
Acrel-2000電力監控系統支持實時監視接入系統的各設備的通信狀態,能夠完整的顯示整個系統網絡結構;可在線診斷設備通信狀態,發生網絡異常時能自動在界面上顯示故障設備或元件及其故障部位。
(10)遙控
Acrel-2000電力監控系統可以對整個配電系統范圍內的設備進行遠程遙控操作。配電系統維護人員可以通過監控系統的主界面點擊相應的斷路器遙信點調出遙控操作界面,通過五防軟件解鎖后,可以及時執行調度系統或站內相應的操作命令。
(11)防誤閉鎖功能
Acrel-2000電力監控系統與五防軟件系統之間建立通信協議鏈接,當某一設備需要進行遙控操作時,首先進行五防規則判斷(即防止誤分、合斷路器;防止帶負荷分、合隔離開關;防止帶電合接地開關;防止帶地線送電;防止誤入帶電間隔)。符合五防規則后,則發送解鎖命令至自動化監控后臺,自動化監控后臺進行遙控操作。五防軟件可以模擬遙控步驟,形成操作票。
(12)通信管理
Acrel-2000電力監控系統可以對整個配電系統范圍內的設備通信情況進行管理、控制、數據的實時監測。可以查看某個設備的通信和數據報文。可以完成與各種智能電子設備的通信和數據轉發,包括微機保護、電力儀表、智能操控、直流屏、模擬屏、五防系統和調度等。
5現場安裝圖片
6結束語
隨著電力系統正向著高可靠性、高自動化、高信息化水平方向迅猛發展,對電網的監控已成為國內外高度重視的關鍵問題,特別是電力系統中起著控制和保護等重要作用的開關柜的監控。智能配電監控保護類、監測類和防誤閉鎖產品解決方案對于供配電系統的可靠穩定運行起著至關重要的作用,尤其是微機保護裝置在電力系統中具有舉足輕重的地位,它能夠反映設備的故障和不正常工作狀態并自動迅速地、有選擇性地動作于斷路器將故障設備從系統中切除,保證無故障設備繼續正常運行,將事故限制在很小范圍,提高系統運行的可靠性,很大限度地保證向用戶安全、連續供電。本文針對中錫林郭勒項目中不同保護對象提供對應的保護功能和監測功能,并且通過電力監控系統采集相關遙測、遙信數據進行監控,配合五防系統能大大提高變電站運行的可靠性、安全性、提高供電質量,有利于實現變電站綜合自動化,實現無人或少人值守。
參考文獻
[1] 安科瑞企業微電網設計與應用手冊.2020.06月版
[2] 安科瑞智能電網用戶端電力監控/電能管理/電氣安全(產品報價手冊).2020.01月版
[3] 安科瑞35KV以及下變電所智能配電系統設計與產品二次原理圖集.2020.10月版
[4] 安科瑞用戶變電站綜合自動化與運維解決方案.2021.2月版




掃一掃添加微信